JR盛岡駅徒歩5分!電車通勤・通学に便利な立地です♪
D’グラフォート盛岡駅前タワーズC棟(リバティ) 502号
- 賃料
- 7.8万円
- マンション
- 間取
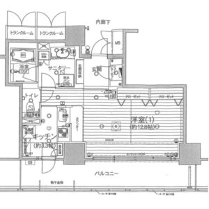
- 1R
- 共益費・管理費
- 0円
- 敷金
- 2ヶ月
- 礼金
- 更新料
- 11,000円
|
|
| 所在地 | 岩手県盛岡市盛岡駅前通 |
|---|---|
| 交通 | JR東北新幹線 盛岡駅 徒歩5分 |
| 築年月 | 2005/08 | 新築/中古 | 中古 |
|---|---|---|---|
| 面積 | 43.09m² | 計測方式 | 内法 |
| バルコニー | 13.29m² | 向き | |
| 建物階数 | 地上25階 | 部屋階数 | 5階 |
| 部屋/区画番号 | 総戸/区画数 | ||
| 建物構造 | SRC | ||
| 管理形態 | 全部委託 管理人日勤 管理組合有 | ||
| 間取内容 |
LDK16.1畳 1室 |
||
| 住宅保険料 | 16,000円 2年 | ||
| 駐車場 | 無 | 取引態様 | 仲介 |
| 引渡/入居時期 | 期日指定 2026/01 下旬 | 現況 | 居住中 |
| 周辺環境 |
桜城小学校 下橋中学校 |
||
| 設備・条件 | ペット不可 分譲賃貸 ガスコンロ 二口コンロ 給湯 追い焚き 洗髪洗面化粧台 独立洗面台 バス専用 浴室乾燥機 トイレ専用 バス・トイレ別 温水洗浄便座 エアコン トランクルーム 室内洗濯機置き場 BSアンテナ 光ファイバー 地デジ対応 オートロック TVドアホン 都市ガス 公営水道 排水下水 エレベータ 宅配ボックス バルコニー フローリング | ||
| 物件番号 | m20251127-01 | 掲載期限日 | 2026/01/31 |
| 特記事項 | ・賃貸保証要加入:初回保証料賃料総額の80%、インサイト決済サービス料月額330円(税込)が別途かかります。 ・仲介手数料:賃料+駐車料の1.1ヵ月分(税込) |
||
Loading...
※物件掲載内容と現況に相違がある場合は現況を優先と致します。
お電話でのお問い合わせは TEL 019 652 2839 まで
お気軽にどうぞ。
この物件について問い合わせる


















