JR盛岡駅徒歩9分、桜城小学校近くのマンションです。
トーカンマンション第2開運橋 206号
- 価格
- 190万円
- 中古マンション
- 間取
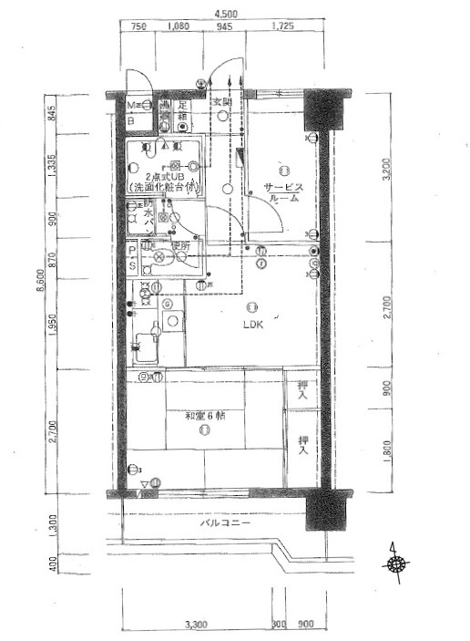
- 1SLDK
- 坪単価
- 16.2393万円
- 共益費・管理費
- 7,740円
- 修繕積立金
- 13,468円
|
|
| 所在地 | 岩手県盛岡市大通三丁目 |
|---|---|
| 交通 | JR東北新幹線 盛岡駅 徒歩700m 徒歩9分 バス(開運橋 停歩4分) |
| 築年月 | 1984/08 | 新築/中古 | 中古 |
|---|---|---|---|
| 面積 | 38.70m² | 計測方式 | 壁芯 |
| バルコニー | 6.27m² | 向き | 南 |
| 建物階数 | 地上11階 | 部屋階数 | 2階 |
| 部屋/区画番号 | 総戸/区画数 | 59 | |
| 建物構造 | SRC | ||
| 管理形態 | 全部委託 管理人日勤 管理組合有 | ||
| 間取内容 |
LDK6.5畳 1室 和室6畳 1室 S3.4畳 1室 |
||
| 住宅保険料 | 修繕積立金 | 13,468円 | |
| 駐車場 | 空無 | 取引態様 | 一般 |
| 引渡/入居時期 | 即時 | 現況 | 空家 |
| 地目 | 宅地 | 用途地域 | 商業 |
| 都市計画 | 市街化区域 | 地勢 | |
| 建ぺい率 | 80% | 容積率 | 200% |
| 土地権利 | 所有権 | 接道状況 | 一方 |
| 接道方向1 | 南東 | 接道間口1 | |
| 接道種別1 | 公道 | 接道幅員1 | |
| 周辺環境 |
桜城小学校 下橋中学校 |
||
| 設備・条件 | ペット不可 給湯 バス専用 トイレ専用 バス・トイレ別 室内洗濯機置き場 都市ガス エレベータ 宅配ボックス 駐輪場 バルコニー | ||
| 物件番号 | b20251222-01 | 掲載期限日 | 2026/01/31 |
| 自社物 | 状態 | 売出中 | |
| 特記事項 | ・現状現況渡し ・町会費月額300円 ・準防火地域 ・居住誘導区域:都心居住区域 ・市街地景観地域 ・屋外広告物規制区域 ・宅地造成等工事規制区域 ・仲介手数料:330,000円(うち消費税額10%30,000円) |
||
Loading...
※物件掲載内容と現況に相違がある場合は現況を優先と致します。
お電話でのお問い合わせは TEL 019 652 2839 まで
お気軽にどうぞ。
この物件について問い合わせる












