築浅1LDKタイプのアパートです!2階角部屋・WIFI無料・駐車場2台付(縦列区画)!2/15~入居可能です♪
ブルーム 203号new
- 賃料
- 6.4万円
- アパート
- 間取
- 1LDK
- 共益費・管理費
- 3,000円
- 敷金
- 1ヶ月
- 礼金
- 更新料
- 11,000円
|
|
| 所在地 | 岩手県盛岡市西下台町6-25 |
|---|---|
| 交通 | バス(舘向 停歩9分) |
| 築年月 | 2020/05 | 新築/中古 | 中古 |
|---|---|---|---|
| 面積 | 34.57m² | 計測方式 | |
| バルコニー | 向き | ||
| 建物階数 | 地上2階 | 部屋階数 | 2階 |
| 部屋/区画番号 | 総戸/区画数 | 6 | |
| 建物構造 | 木造 | ||
| 敷地全体面積 | 延べ床面積 | 34.57m² | |
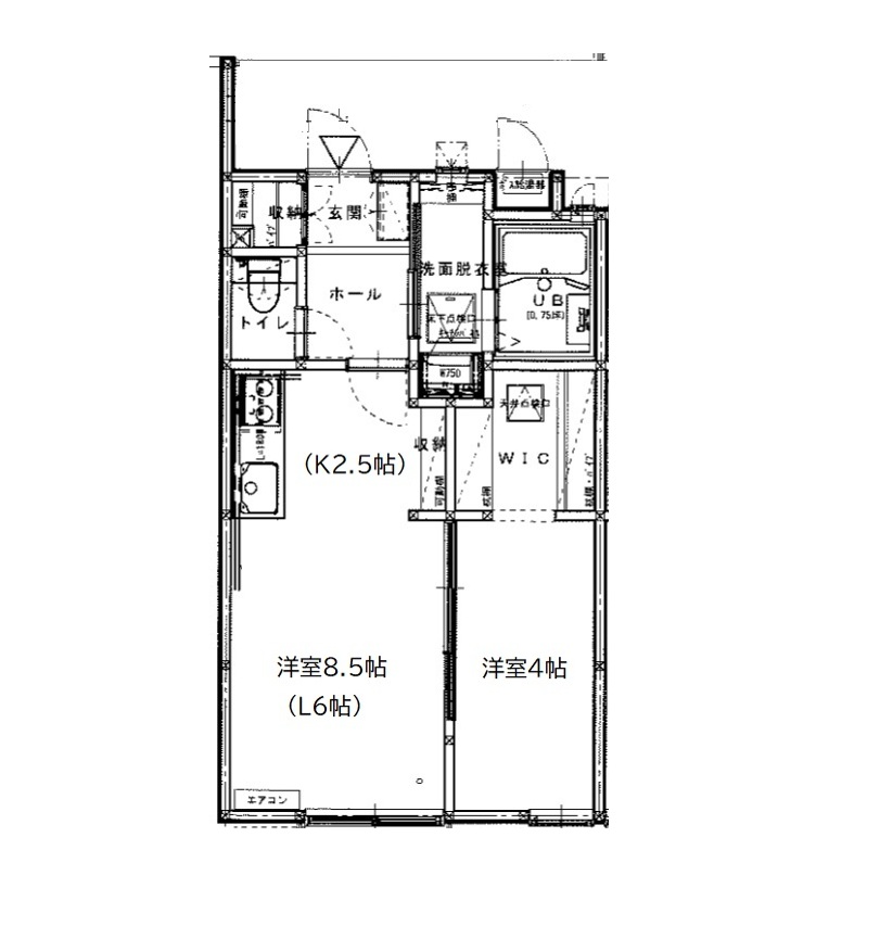
| 間取内容 |
LDK8.5畳 洋室4畳 |
||
| 住宅保険料 | 16,000円 2年 | ||
| 駐車場 | 空有 2台付(無料)、縦列駐車場になります | 取引態様 | 仲介 |
| 引渡/入居時期 | 期日指定 2026/02/15 | 現況 | 空家 |
| 周辺環境 |
河北小学校 上田中学校 |
||
| 設備・条件 | 2人入居可 角部屋 給湯 追い焚き 洗髪洗面化粧台 独立洗面台 バス専用 シャワー 浴室乾燥機 トイレ専用 バス・トイレ別 温水洗浄便座 エアコン 室内洗濯機置き場 インターネット利用料無料 TVドアホン カードキーシステム プロパンガス 公営水道 排水下水 駐車場有 フローリング ,フリーWi-Fi(バッファロー),浴室乾燥,デジタルキー,自動水抜き栓,ガスコンロ可 |
||
| 物件番号 | a20200513-2 | 掲載期限日 | 2026/02/28 |
| 自社物 | 状態 | 空有 | |
| 特記事項 | ・室内写真は参考です ・賃貸保証システム加入必須:初回保証料賃料総額の80%、インサイト決済サービス料月額330円(税込)別途あり ・仲介手数料:70,400円(税込) |
||
Loading...
※物件掲載内容と現況に相違がある場合は現況を優先と致します。
お電話でのお問い合わせは TEL 019 652 2839 まで
お気軽にどうぞ。
この物件について問い合わせる














