盛岡バスセンター徒歩1分、通勤通学に便利な立地です。ファミリータイプ3LDKのマンションです。城南小学校・城東中学校区。
マンションK3 201号
- 賃料
- 9万円
- マンション
- 間取
- 3LDK
- 共益費・管理費
- 10,000円
- 敷金
- 1ヶ月
- 礼金
- 1ヶ月
- 更新料
- 11,000円
|
|
| 所在地 | 岩手県盛岡市中ノ橋通1丁目12-1 |
|---|---|
| 交通 | バス(盛岡バスセンター 停歩1分) |
| 築年月 | 2001/11 | 新築/中古 | 中古 |
|---|---|---|---|
| 面積 | 71.83m² | 計測方式 | |
| バルコニー | 向き | ||
| 建物階数 | 地上10階 | 部屋階数 | 2階 |
| 部屋/区画番号 | 総戸/区画数 | 40 | |
| 建物構造 | SRC | ||
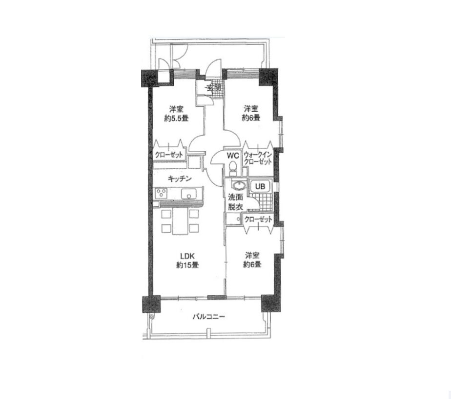
| 間取内容 |
LDK15畳 洋室6畳 洋室6畳 洋室5.5畳 |
||
| 住宅保険料 | 16,000円 2年 | ||
| 駐車場 | 10,000円 空無 屋外10,000円 屋内15,000円 現在空なし | 取引態様 | 仲介 |
| 引渡/入居時期 | 即時 | 現況 | 空家 |
| 周辺環境 |
城南小学校 城東中学校 |
||
| 設備・条件 | 角部屋 角地 ガスコンロ 三口コンロ システムキッチン 給湯 追い焚き 洗髪洗面化粧台 独立洗面台 バス専用 シャワー ユニットバス トイレ専用 バス・トイレ別 温水洗浄便座 エアコン 室内洗濯機置き場 CATV BSアンテナ 光ファイバー 地デジ対応 オートロック TVドアホン プロパンガス 公営水道 排水下水 エレベータ 宅配ボックス バルコニー フローリング 24時間換気(ロスナイ) |
||
| 物件番号 | m20251111-02 | 掲載期限日 | 2026/01/31 |
| 自社物 | 状態 | 空有 | |
| 特記事項 | ・連帯保証人又は賃貸保証システムへの加入が必要です。 ・賃貸保証加入の場合、初回保証料賃料総額の80%、インサイト決済サービス料月額330円(税込)が別途かかります。 ・仲介手数料:賃料+駐車料の1.1ヵ月分(税込) ・室内写真は参考です。 |
||
Loading...
※物件掲載内容と現況に相違がある場合は現況を優先と致します。
お電話でのお問い合わせは TEL 019 652 2839 まで
お気軽にどうぞ。
この物件について問い合わせる


















