盛岡バスセンター徒歩3分!バス通勤通学に便利な立地です。敷地内駐車場1台付です(機械式上段・サイズ制限有)
サーパス中ノ橋 301号
- 賃料
- 13.7万円
- マンション
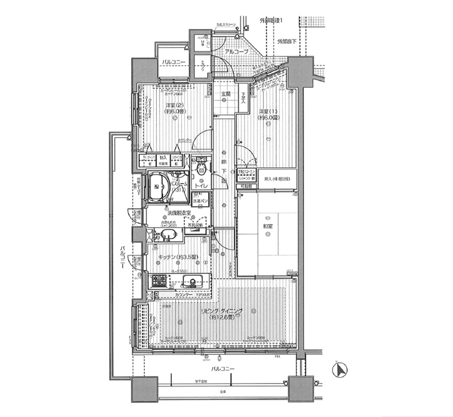
- 間取
- 3LDK
- 共益費・管理費
- 0円
- 敷金
- 2ヶ月
- 礼金
- 1ヶ月
- 更新料
- 11,000円
|
|
| 所在地 | 岩手県盛岡市中ノ橋通一丁目 サーパス中ノ橋 |
|---|---|
| 交通 | バス(盛岡バスセンター 停歩3分) |
| 築年月 | 2005/10 | 新築/中古 | 中古 |
|---|---|---|---|
| 面積 | 75.19m² | 計測方式 | 壁芯 |
| バルコニー | 28.29m² | 向き | 南 |
| 建物階数 | 地上14階 | 部屋階数 | 3階 |
| 部屋/区画番号 | 総戸/区画数 | 65 | |
| 建物構造 | RC | ||
| 管理形態 | 全部委託 管理人日勤 管理組合有 | ||
| 間取内容 |
洋室6畳 2室 和室6畳 1室 LDK16.1畳 1室 |
||
| 住宅保険料 | 20,000円 2年 | ||
| 駐車場 | 空有 1台付(機械式上段/格納サイズ:全長5050㎜・車幅1,850㎜・全高2,100㎜・重量2000kg以内) | 取引態様 | 仲介 |
| 引渡/入居時期 | 即時 | 現況 | 空家 |
| 周辺環境 |
城南小学校 下小路中学校 |
||
| 設備・条件 | ペット不可 分譲賃貸 IHコンロ 三口コンロ システムキッチン ディスポーザー 給湯 追い焚き 洗髪洗面化粧台 独立洗面台 バス専用 シャワー バス・トイレ別 温水洗浄便座 エアコン トランクルーム 室内洗濯機置き場 CATV CSアンテナ BSアンテナ インターネット有 オートロック TVドアホン 都市ガス 公営水道 排水下水 エレベータ 宅配ボックス 駐車場有 駐輪場 バルコニー フローリング エアコン2台 |
||
| 物件番号 | m20251203-01 | 掲載期限日 | 2026/01/31 |
| 特記事項 | ・賃貸保証システム加入要、初回保証委託料:賃料総額の80%、インサイト決済手数料月額税込330円別途あり(保証料はプランにより金額が異なります) ・仲介手数料:150,700円(10%税込) |
||
Loading...
※物件掲載内容と現況に相違がある場合は現況を優先と致します。
お電話でのお問い合わせは TEL 019 652 2839 まで
お気軽にどうぞ。
この物件について問い合わせる






















