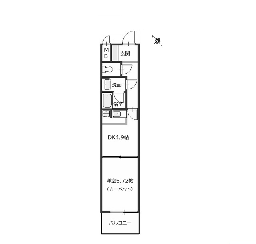
1DKタイプのお部屋です。ユニバース中野店迄徒歩6分です♪お引渡し即可!
給湯器(都市ガス)、ガステーブル新品です♪
いわてのすまい探しポータルサイト ● 有限会社 中央不動産ホームページ ● 盛岡市以外の物件もございますのでお気軽にお問い合わせください。 TEL.019-652-2839
いわての住まい探しは中央不動産へ。
1DKタイプのお部屋です。ユニバース中野店迄徒歩6分です♪お引渡し即可!
給湯器(都市ガス)、ガステーブル新品です♪
|
185万円 1DK |
| 所在地 | 岩手県盛岡市東山1丁目11-23 |
|---|---|
| 交通 | バス(東山1丁目 停歩6分) |
| 築年月 | 1991/09 | 新築/中古 | 中古 |
|---|---|---|---|
| 面積 | 28.60m² | 計測方式 | 壁芯 |
| バルコニー | 3.90m² | 向き | 南 |
| 建物階数 | 地上4階 | 部屋階数 | 2階 |
| 部屋/区画番号 | 総戸/区画数 | 95 | |
| 建物構造 | RC | ||
| 管理形態 | 全部委託 管理人日勤 管理組合有 | ||
| 間取内容 |
洋室5.7畳 1室 DK4.9畳 1室 |
||
| 住宅保険料 | 修繕積立金 | 5,720円 | |
| 駐車場 | 7,000円 空無 月額4,500円~7,000円(台数制限有、現在空無し) | 取引態様 | 売主 |
| 引渡/入居時期 | 即時 | 現況 | 空家 |
| 地目 | 用途地域 | 第二種中高層住居専用 | |
| 都市計画 | 市街化区域 | 地勢 | |
| 建ぺい率 | 60% | 容積率 | 200% |
| 土地権利 | 接道状況 | 一方 | |
| 接道方向1 | 東 | 接道間口1 | |
| 接道種別1 | 公道 | 接道幅員1 | |
| 周辺環境 |
中野小学校 河南中学校 |
||
| 設備・条件 | ペット不可 ガスコンロ 一口コンロ 給湯 洗髪洗面化粧台 独立洗面台 バス専用 シャワー トイレ専用 バス・トイレ別 室内洗濯機置き場 オートロック 都市ガス 公営水道 駐輪場 バルコニー ミニキッチン,ミニ冷蔵庫 |
||
| 物件番号 | b20260318-02 | 掲載期限日 | 2026/06/31 |
| 自社物 | 状態 | 売出中 | |
| 特記事項 | ・駐輪場使用料:無料(ステッカー有り)・大型バイクはNG ・現状現況渡し・立地適正化計画【一般居住区域】居住誘導区域外 ・市街地景観地域、屋外広告物規制区域(第2種市街地景観区域) ・宅地造成等工事規制区域 ・建築基準法22条屋根不燃区域 ・当社売主の為、仲介手数料はございません。(当方不払い) |
||
お電話でのお問い合わせは TEL 019 652 2839 まで
お気軽にどうぞ。